Станция биологической очистки (модель КОС, Марка V3)

Станция

Назначение оборудование. 

Станция предназначена для очистки хозяйственно-бытовых стоков до норм сброса в водоемы рыбохозяйственного назначения.

Экспертное заключение №63. Блок доочистки производственно-ливневых стоков, содержащих нефтепродукты, серии "КОС"

Экспертное заключение № 1010. Станции биологической очистки серии "КОС"

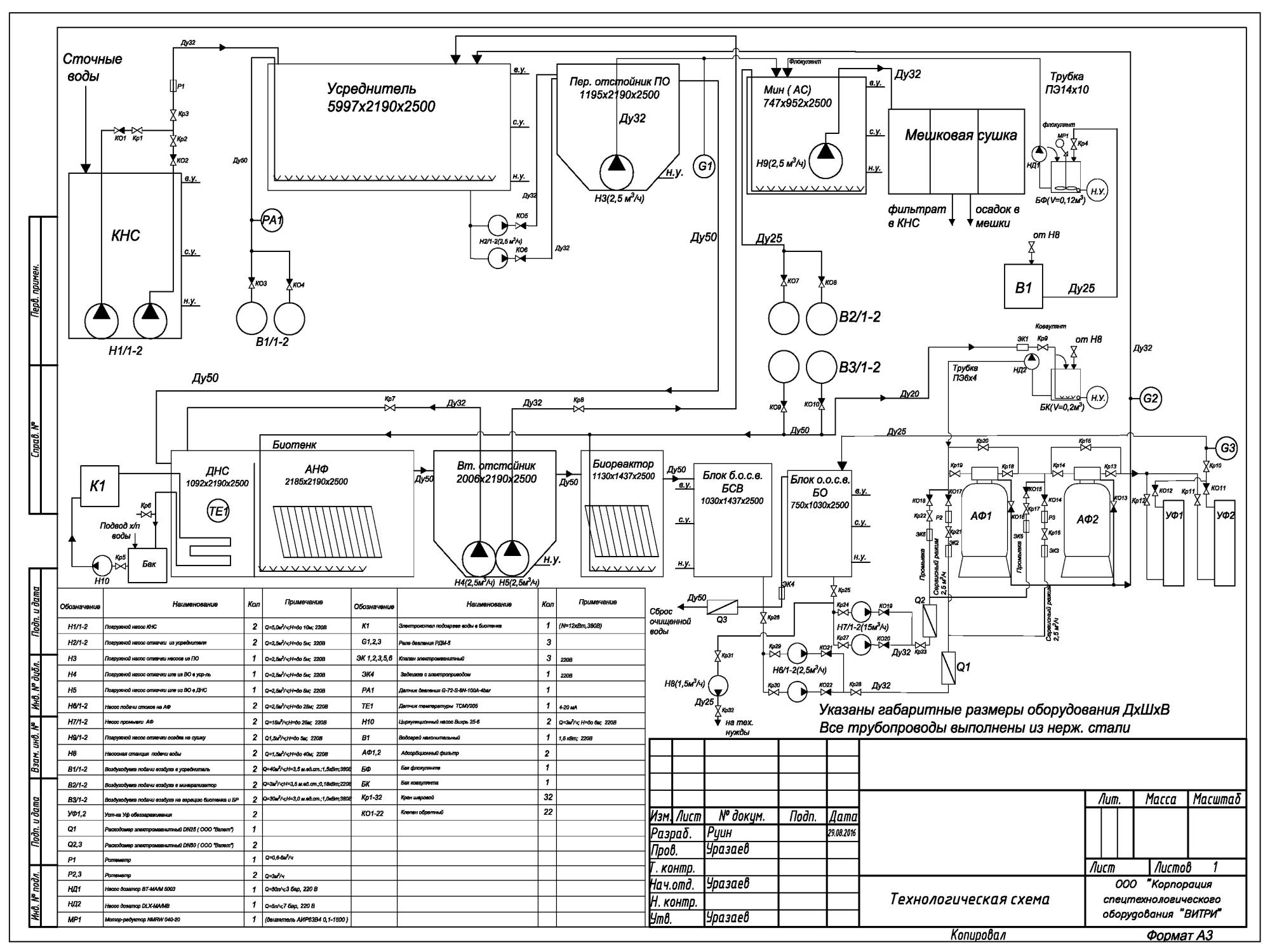
Состав оборудования. 

п/п
Наименование оборудования
Ед. изм.
Кол-во
1
Модуль биологической очистки (Марка V3, модель БСВ-СД-55) производительностью 55 м3/сут
Шт.
1
2
Модуль очистных сооружений бытовых сточных вод (Марка V3, модель БСВ-СД-75) производительностью 75 м3/сут
Шт.
1
3
Модуль очистных сооружений бытовых сточных вод (Марка V3, модель БСВ-СД-175) производительностью 175 м3/сут
Шт.
1

Общая производительность реализуемой станции зависит от количества выбранных модулей. Пример: 2 (Два) модуля модели БСВ-СД-55 + 1 (один) модуль модели БСВ-СД -75 + 2 (два) модуль модели БСВ-СД-175 производительность станции составляет 535 м3/сут.

  Технологические схемы

(для увеличения нажми на картинку ниже)

Модуль 55 м3/сут

Модуль биологической очистки (Модель БСВ-СД-55, марка V3) производительностью 55 м3/сут

 

п/п

Наименование оборудования

Технические характеристики

Кол-во

1

Погружной насос КНС

Q=5 м3/час

Н=10 м.вод.ст.

2 раб (1 раб, 1 рез)

2

Погружной насос подачи сточных вод из усреднителя в первичный отстойник

Q=2,5 м3/час

Н=5 м.вод.ст.

2 (1 раб, 1 рез) (включается при выходе из строя 1-го насоса)

3

Погружной насос откачки осадка из первичного отстойника

Q=2,5 м3/час

Н=5 м.вод.ст.

2 (1 раб, 1 – на складе)

4

Воздуходувка подачи воздуха в усреднитель

Q=40 м3/час

Н=3,5 м.вод.ст.

2 (1 раб, 1 хол рез)

5

Воздуходувка подачи воздуха в минерализатор

Q=3 м3/час

Н=3,5 м.вод.ст.

2 (1 раб, 1 хол  рез)

6

Воздуходувка подачи воздуха на аэрацию биотенка и биореактора

Q=30 м3/час

Н=3,5 м.вод.ст.

2 (1 раб, 1 хол рез)

7

Погружной насос возвратного ила

Q=2,5 м3/час

Н=5 м.вод.ст.

2 (1 раб, 1 на складе)

8

Погружной насос избыточного ила

Q=2,5 м3/час

Н=5 м.вод.ст.

2 (1 раб, 1 – на складе)

9

Насос подачи стоков на адсорбционные фильтры

Q=2,5 м3/час

Н=25 м.вод.ст.

2 (1 раб, 1 рез) (включается, при выходе из строя 1-го насоса)

10

Насос подачи промывной воды на адсорбционные фильтры

Q=15 м3/час

Н=25 м.вод.ст.

2 (1 раб, 1 рез) (включается, при выходе из строя 1-го насоса)

11

Расходомер электромагнитный на трубопроводе подачи сточных вод на адсорбционные фильтры

Ду 25

1

12

Расходомер электромагнитный на трубопроводе промывной воды на адсорбционные фильтры

Ду 50

1

13

Расходомер электромагнитный на сброс очищенной и обеззараженной сточной воды (расход сбрасываемых стоков)

Ду 50

1

14

Насосная станция подачи воды на технологические нужды

Q=1,5 м3/час

Н=40 м.вод.ст.

2 (1 раб, 1 – на складе)

15

Погружной насос подачи осадка на мешковую сушилку

Q=1,5 м3/час

Н=5 м.вод.ст.

2 (1 раб, 1 – на складе)

16

УФ-установк

Q=2,5 м3/час

2 (1 раб, 1 – рез)

17

Бак коагулянта с системой аэрации

V=200 л

1

18

Насос дозатор раствора коагулянта

Q=5 л/час

Н=30-40 м.вод.ст.

2 (1 раб, 1 – на складе)

19

Бак флокулянта с мешалкой

V=100 л

1

20

Насос дозатор флокулянта

Q=50 л/час

Н=30-40 м.вод.ст.

2 (1 раб, 1 – на складе)

21

Мешковая сушилка (на 3 мешка)

Q=75 кг/сут

Вл=80%

1 компл

22

Осветлительно-сорбционный фильтр

Q=2,5 м3/час

2

23

Электрокотел подогрева воды в биотенке

W=12 кВт

U=380 В

1

Модуль 75 м3/сут

Модуль очистных сооружений бытовых сточных вод (Модель БСВ-СД-75, марка V3) производительностью 75 м3/сут

Модуль 175 м3/сут

Модуль очистных сооружений бытовых сточных вод (Модель БСВ-СД-175, марка V3) производительностью 175 м3/сут

 

п/п

Обозначение

Наименование

Кол-во

 

ЛНГА-60.02.02.00.00

Блоком емкостей очистных сооружений бытовых сточных вод зоны свбодного доступа

1

 

 

Составные части изделия

1

УФС-20

Устройство фильтрующее самоочищающееся

2

2

ЛНГА-60.02.02.02.000, 

ЛНГА-60.02.02.02.000-01

Аэробный стабилизатор совмещенный с денитрификатором и 1-я секция аэротенка-нитрификатор

2

3

ЛНГА-60.02.02.14.000-01

  ЛНГА-60.02.02.14.000-02

Аэротенк-нитрификатор 2-я секция

2

4

ЛНГА-60.02.02.14.000

Аэротенк-нитрификатор 3-я секция

2

5

ЛНГА-60.02.02.04.000

ЛНГА-60.02.02.04.000-01

 

Вторичный отстойник

2

6

ЛНГА-60.02.02.05.000,

ЛНГА-60.02.02.05.000-01

Биореактор

2

7

ЛНГА-60.02.02.06.000,

ЛНГА-60.02.02.06.000-01

Безнапорный фильтр

2

8

ЛНГА-60.02.02.07.000,

ЛНГА-60.02.02.07.000-01

Установки ультрафиолетового обеззараживания УОВ

2

9

ЛНГА-60.02.02.09.000

Установка реагентного хозяйства

1

10

ЛНГА-60.02.02.13.000

Установка обезвоживания на мешковых фильтрах

1

11

ЛНГА-60.02.02.11.000

Установка флокуляционного хозяйства

1

12

ЛНГА-60.02.02.10.000

Вертикальный илоуплотнитель

1

13

-

Насосное оборудование

1

14

-

Воздуходувное оборудование

1

15

СВМ-32

Счетчик холодной и горячей воды

1

16

Акрон 02-02

Расходомер

1

17

ЛНГА-60.02.03.00.000

Приточнач система П2

1

18

ЛНГА-60.02.04.00.000

Вытяжная система В2

1

19

ЛНГА-60.02.02.15.000

Здание биологической очистки

1

20

00GQD95JH001

Центральный щит управления

1

21

00GQA94JH003

Шкаф УФ

1

22

00GQA94JH004

Шкаф УР

1

23

-

Комплект кабельной продукции подключения оборудования

1

24

-

Комплект трубопроводов обвязки оборудования с запорной арматурой

1

25

ВР 80-75-3,15

Вентилятор радиальный  с эектродвигателем асинхронным

1